Foto leveres af Google Street View og kan være upræcist:
Lager til leje, Skovlunde, Literbuen 12A
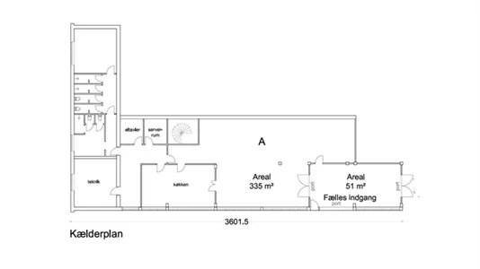
Literbuen 12A, 2740 Skovlunde- Lager til leje
- 335 m2
- 16.500 kr. per måned
Literbuen 12A, 2740 Skovlunde
- Lager til leje
- 335 m2
- 16.500 kr. per måned
Få mere info
Du linkes til en anden portal, som evt. kan kræve betaling eller oprettelse
Lager til leje, Skovlunde, Literbuen 12A
Flot opvarmet lejemål indeholdende, lager, kontor, køkken, bad og Wc
Lejemålet har et kontor, og et stort lagerlokale - samt mindre rum. Perfekt til lager, eller produktion inden for forskellige erhverv.
Der er en fin ledhejseport ind til lejemålet, der er: Bredde 3,51 M og højde 2,30 M
Egne toiletfaciliteter og køkken.
Prisen er angivet inkl. driftsomkostninger. Derudover kommer der kun forbrug af el, vand og varme samt en lille andel til snerydning.
Der skal betales 6 mdr. depositum ved indgåelse af lejekontrakt og opsigelsesperioden er 6 mdr.
Lejemålet opvarmes med fjernvarme, er isoleret og kan derfor opvarmes. parkeringsplads medfølger til lejemålet.
Busforbindelse lige uden foran døren og kun 800 meter fra Herlev station.
lejen er kun 16.500 pr. måned + moms, inkl. drift.
.....udlejes ikke til autoværksted.....
Der er en fin ledhejseport ind til lejemålet, der er: Bredde 3,51 M og højde 2,30 M
Egne toiletfaciliteter og køkken.
Prisen er angivet inkl. driftsomkostninger. Derudover kommer der kun forbrug af el, vand og varme samt en lille andel til snerydning.
Der skal betales 6 mdr. depositum ved indgåelse af lejekontrakt og opsigelsesperioden er 6 mdr.
Lejemålet opvarmes med fjernvarme, er isoleret og kan derfor opvarmes. parkeringsplads medfølger til lejemålet.
Busforbindelse lige uden foran døren og kun 800 meter fra Herlev station.
lejen er kun 16.500 pr. måned + moms, inkl. drift.
.....udlejes ikke til autoværksted.....
Information og data
Dette værkstedslokale, som også kan anvendes til Værksted ligger på Literbuen i Skovlunde. Skovlunde har postnummeret 2740, og ligger i kommunen Ballerup, som ligger i Storkøbenhavn. Lokalet er i alt 335 m2. Lejepris: 198.000 kr. per år.